Thiết kế khách sạn 5 sao là gì? Vì sao không thể làm theo lối đại trà

Thiết kế khách sạn 5 sao không đơn thuần là tạo ra một công trình “đẹp” hay “hoành tráng”. Đây là bài toán tổng hòa giữa kiến trúc – nội thất – công năng – vận hành – trải nghiệm – hiệu quả đầu tư. Mỗi quyết định thiết kế đều ảnh hưởng trực tiếp đến giá phòng, tỷ lệ lấp đầy, chi phí vận hành và thời gian hoàn vốn.

Khác với khách sạn 3–4 sao, nơi yếu tố tiện nghi cơ bản là trọng tâm, thiết kế khách sạn 5 sao đặt trải nghiệm cá nhân hóa và cảm xúc của khách lưu trú lên hàng đầu. Không gian phải kể được câu chuyện, định hình được đẳng cấp và tạo dấu ấn nhận diện riêng, đủ mạnh để cạnh tranh trong thị trường cao cấp vốn ngày càng khốc liệt.

Sai lầm phổ biến của nhiều chủ đầu tư là áp dụng mô-típ thiết kế đại trà, sao chép phong cách từ dự án khác mà không nghiên cứu sâu mô hình kinh doanh. Kết quả là khách sạn đẹp nhưng khó vận hành, chi phí đội cao, trải nghiệm rời rạc và không tạo được lợi thế cạnh tranh dài hạn.

thiet-ke-khach-san-5-sao-1
thiet-ke-khach-san-5-sao-1

Bài toán lớn của chủ đầu tư khi thiết kế khách sạn 5 sao

Thiết kế khách sạn 5 sao làm sao để vừa đẹp vừa khai thác hiệu quả

Đẹp là điều kiện cần, nhưng khai thác hiệu quả mới là điều kiện đủ. Một thiết kế khách sạn 5 sao thành công phải tối ưu luồng di chuyển, phân khu chức năng hợp lý, giảm diện tích chết và tăng diện tích sinh lợi.

Nhiều dự án thất bại vì tập trung quá nhiều vào hình thức mà bỏ qua bài toán vận hành: sảnh quá lớn nhưng ít sử dụng, hành lang dài gây lãng phí diện tích, phòng dịch vụ bố trí bất hợp lý dẫn đến chi phí nhân sự tăng cao.

Thiết kế chuẩn phải giúp:

  • Tăng trải nghiệm nhưng không tăng chi phí vận hành
  • Tối ưu công năng để mỗi m² đều sinh lợi
  • Dễ bảo trì, dễ nâng cấp trong tương lai

Làm thế nào để thiết kế khách sạn 5 sao tạo dấu ấn nhận diện riêng

Trong thị trường khách sạn cao cấp, không có chỗ cho sự mờ nhạt. Thiết kế khách sạn 5 sao cần một concept xuyên suốt, đủ mạnh để khách chỉ cần nhìn hình ảnh là nhận ra thương hiệu.

Dấu ấn không nằm ở việc dùng vật liệu đắt tiền, mà nằm ở ý tưởng thiết kế có chiều sâu, gắn với:

  • Câu chuyện thương hiệu
  • Bản sắc địa phương
  • Đối tượng khách hàng mục tiêu

Thiết kế khách sạn 5 sao nhưng vẫn kiểm soát được ngân sách đầu tư

Ngân sách luôn là áp lực lớn. Thiết kế thông minh giúp chi tiền đúng chỗ, ưu tiên những không gian tạo doanh thu và trải nghiệm cốt lõi, tránh đầu tư dàn trải.

thiet-ke-khach-san-5-sao-2
thiet-ke-khach-san-5-sao-2

Các tiêu chuẩn cốt lõi trong thiết kế khách sạn 5 sao chuẩn quốc tế

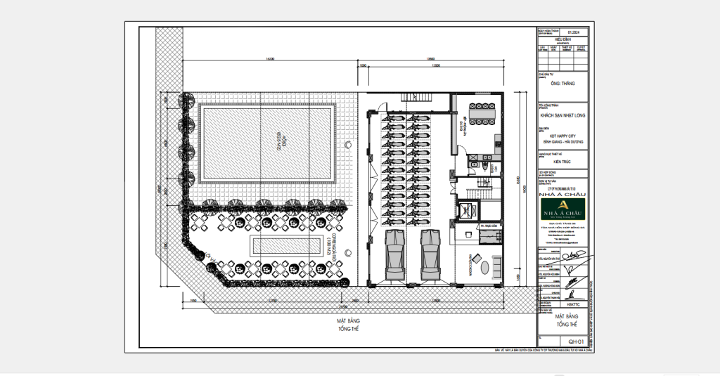
Tiêu chuẩn quy hoạch & giao thông trong thiết kế khách sạn 5 sao

Quy hoạch tổng thể quyết định 50% thành công của dự án. Thiết kế khách sạn 5 sao cần tách biệt rõ:

  • Luồng khách
  • Luồng nhân sự
  • Luồng hàng hóa – kỹ thuật

Việc giao cắt luồng sai cách sẽ ảnh hưởng nghiêm trọng đến trải nghiệm và hiệu suất vận hành.

Tiêu chuẩn không gian – công năng khách sạn 5 sao

Thiết kế sảnh khách sạn 5 sao – điểm chạm đầu tiên của trải nghiệm

Sảnh không chỉ là nơi check-in mà là “tuyên ngôn đẳng cấp”. Thiết kế cần:

  • Trần cao, tầm nhìn rộng
  • Ánh sáng được kiểm soát tinh tế
  • Bố cục tạo cảm giác chào đón nhưng vẫn riêng tư
thiet-ke-khach-san-5-sao-3
thiet-ke-khach-san-5-sao-3

Thiết kế phòng nghỉ khách sạn 5 sao – tiện nghi & cá nhân hóa

Phòng nghỉ là nơi khách ở lâu nhất. Thiết kế khách sạn 5 sao cần chú trọng:

  • Diện tích tiêu chuẩn rộng rãi
  • Phân khu ngủ – tắm – thư giãn rõ ràng
  • Cách âm, ánh sáng, tầm nhìn

Thiết kế khu dịch vụ: nhà hàng, spa, bar, hồ bơi 5 sao

Đây là nhóm không gian tạo doanh thu bổ trợ mạnh mẽ. Thiết kế cần linh hoạt, dễ thay đổi concept theo mùa và xu hướng.

thiet-ke-khach-san-5-sao-4
thiet-ke-khach-san-5-sao-4

Tiêu chuẩn vật liệu & hoàn thiện trong thiết kế khách sạn 5 sao

Vật liệu phải đạt 3 tiêu chí: thẩm mỹ – độ bền – khả năng bảo trì. Không phải vật liệu càng đắt càng tốt, mà phải phù hợp với tần suất sử dụng cao của khách sạn.

Xu hướng thiết kế khách sạn 5 sao được ưa chuộng hiện nay

Thiết kế khách sạn 5 sao theo concept trải nghiệm

Khách hàng cao cấp trả tiền cho cảm xúc. Thiết kế hướng đến trải nghiệm đa giác quan: thị giác, âm thanh, mùi hương, chất liệu.

Thiết kế khách sạn 5 sao gắn với bản sắc địa phương

Bản sắc địa phương giúp khách sạn khác biệt và ghi nhớ lâu hơn so với các chuỗi quốc tế rập khuôn.

Thiết kế khách sạn 5 sao tối ưu vận hành & tiết kiệm năng lượng

Xu hướng xanh, tiết kiệm năng lượng, thiết kế bền vững đang trở thành tiêu chuẩn bắt buộc.

thiet-ke-khach-san-5-sao-5
thiet-ke-khach-san-5-sao-5

Quy trình thiết kế khách sạn 5 sao chuyên nghiệp cho chủ đầu tư

Khảo sát – phân tích mô hình kinh doanh khách sạn 5 sao

Mỗi mô hình (resort, city hotel, boutique) cần hướng thiết kế khác nhau.

Tham khảo thêm:
thiet-ke-khach-san-cao-cap

bang-gia-thiet-ke

Xem thêm các công trình tại đây.

Lên concept & định hướng thiết kế khách sạn 5 sao

Concept là “xương sống” xuyên suốt kiến trúc – nội thất – cảnh quan.

Triển khai hồ sơ thiết kế kỹ thuật – thi công đồng bộ

Thiết kế khách sạn 5 sao đòi hỏi hồ sơ kỹ thuật chi tiết, hạn chế tối đa sai sót khi thi công.

Kiểm soát thiết kế khách sạn 5 sao theo ngân sách & tiến độ

Đơn vị thiết kế cần đồng hành xuyên suốt, không chỉ dừng ở bản vẽ.

Thiết kế khách sạn 5 sao ảnh hưởng thế nào đến hiệu quả kinh doanh

Thiết kế khách sạn 5 sao giúp nâng giá phòng & tỷ lệ lấp phòng

Không gian đẹp, trải nghiệm tốt giúp khách sẵn sàng chi trả cao hơn.

Thiết kế tối ưu giúp giảm chi phí vận hành dài hạn

Thiết kế đúng ngay từ đầu giúp tiết kiệm chi phí sửa chữa, cải tạo.

Thiết kế đúng giúp rút ngắn thời gian hoàn vốn

Đây là mục tiêu lớn nhất của chủ đầu tư.

Tiêu chí lựa chọn đơn vị thiết kế khách sạn 5 sao uy tí

Kinh nghiệm thực chiến các dự án khách sạn 5 sao

Năng lực thiết kế concept & kiểm soát thi công

Khả năng tư vấn bài toán đầu tư – vận hành

Kết luận – Thiết kế khách sạn 5 sao là đầu tư chiến lược, không chỉ là xây dựng

Thiết kế khách sạn 5 sao là bước đi chiến lược, quyết định khả năng cạnh tranh, hiệu quả vận hành và giá trị thương hiệu trong dài hạn. Một thiết kế đúng không chỉ mang lại vẻ đẹp, mà còn là đòn bẩy kinh doanh bền vững cho chủ đầu tư.

thiet-ke-khach-san-5-sao-6
thiet-ke-khach-san-5-sao-6